
Designed with planning, practicality and long‑term value in mind.
Every Home Extension Starts with a Conversation
With over 40 years’ experience across Northern Ireland, I help homeowners explore their options and create practical, elegant spaces that feel natural to their home. Whether you need more room or a better flow, I’ll guide you through the process with clarity and professionalism — from first ideas through to planning and building control approval.




Recent Extensions
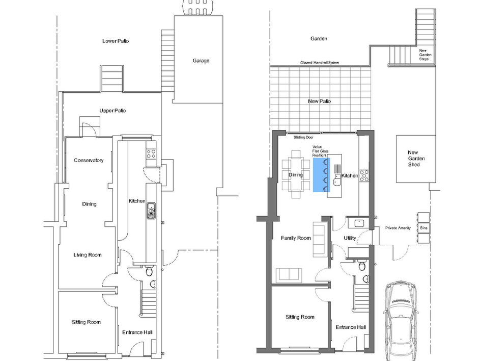
Central Avenue, Bangor
Kitchen Extension & Ground Floor Redesign
This project is now fully completed, and I’m delighted with how the new extension and redesigned ground‑floor layout have transformed the home. The additional space has made a significant difference to how the rooms connect and function, and it’s rewarding to see the design come together so successfully on site.
I was also pleased to receive a 5‑star review from the homeowners:
“Glenn was responsible for the drawings for our kitchen extension and the redesign of our downstairs layout, which has just been completed. We are very pleased with the final result. Every detail has been meticulously considered, greatly improving our use of the space. He also handled all the administrative tasks associated with submitting the drawings for planning approval, which was immensely helpful. I would highly recommend his services.”
Carshaulton Road, Donaghadee
Two‑Phase Extensions
Planning Permission and Building Control Approval secured. Great news that Phase 1 is now complete. Phase 1 was the rear extension to provide a new Utility, Garden Room and Sheltered Patio. Great seeing my drawings turned into reality. It's was a beautiful home already but exceptional now after the completion of Phase 1.
A summary of the Improvements to this dwelling as follows:
Phase 1 - New Utility & Sitting Room
Provided to the rear, linking through the new Utility to a new Sitting room. Sliding doors to access the patio, sheltered under a canopy and large Velux Vario Rooflight.
Phase 2 - New Master Bedroom / Ensuite
Provided on the first floor over the existing garage a new fourth bedroom (Master) with en-suite.
New Line, Dundonald
Replacing an Outdated Conservatory
Many homeowners come to me for help replacing conservatories that are too cold in winter and uncomfortably warm in summer. For this project, my clients wanted a new fully glazed dining space, open to the kitchen, that performs well all year round. The new design provides a bright, modern larger dining space that stays warm in the colder months and pleasantly cool in the summer, transforming how the rear of the home is used.
Project Details
-
Removal of the existing outdated conservatory.
-
Contemporary, fully glazed dining space designed for year‑round comfort.
-
Improved thermal performance to maintain warmth in winter and reduce overheating in summer.
-
Modern aesthetic that enhances the rear elevation of the home.
Gilnahirk Walk, Belfast
Two Storey Side Extension & Internal Reconfigurations.
What a transformation this extension has made to the home. With Planning Permission and Building Control Approvals secured, the extension and alterations are now fully completed. The before‑and‑after photos show just how significant the changes made to this home. We were able to create a bright open‑plan Kitchen / Dining / Family Room, with a new downstairs WC formed in the area previously used as a store. Upstairs, two bedrooms were substantially increased in size, resulting in a far more practical and spacious layout. It’s now a superb home, and a pleasure to see my design completed so successfully.
Project Details
-
Side extension and internal alterations completed with full approvals.
-
Ground floor space reconfigured to form an open‑plan Kitchen / Dining / Family Room.
-
New downstairs WC created within the former store area.
-
Two first‑floor bedrooms significantly enlarged to improve comfort and usability.
-
A complete transformation of the home’s layout and day‑to‑day functionality.
Rosevale Avenue, Dunmurry
Garage Conversion, First‑Floor Extension & Full External Upgrade
With Planning Permission and Building Control Approval granted, the extension and alterations to this home are now fully complete. The before‑and‑after photos show just how dramatically the property has been transformed, with a much stronger sense of kerb appeal and a far more practical internal layout. The project involved converting and building over the existing garage to create valuable new living space across both floors.
Project Details
-
Existing garage converted to form a new ground‑floor Family Room.
-
First‑floor extension constructed above the garage to provide a new Master Bedroom with En‑suite.
-
Additional dormer window added to enhance light and headroom in the new Master Suite.
-
Bedroom 3 to the rear enlarged with a new dormer window.
-
New zinc‑clad pitched roof installed over the extension for a contemporary finish.
-
Balcony upgraded using single‑ply membrane in anthracite grey.
-
All windows and external doors renewed in anthracite grey uPVC for a cohesive, modern appearance.
Cabin Hill Park, Belfast
Rear Extension with Open‑Plan Living Space
This extension has made a remarkable difference to the home, creating a large open‑plan Kitchen / Dining / Living space with full‑height glazing to enjoy views over the garden. The new layout brings in excellent natural light and provides a bright, modern space for everyday living. A new downstairs WC was also added as part of the works, improving convenience and functionality on the ground floor.
Project Details
-
Rear extension forming a spacious open‑plan Kitchen / Dining / Living area.
-
Full‑height glazing installed to maximise natural light and garden views.
-
New downstairs WC added for improved ground‑floor convenience.
-
A significant upgrade to the home’s layout, comfort and day‑to‑day usability.
-
3 Velux rooflights to flood the space with natural light.
Irwin Crescent, Belfast
Side Extension, Rear Extension & Attic Conversion
This project involved a combination of a side extension, rear extension and full attic conversion — a series of changes that have made a remarkable difference to the home. The Existing and Proposed Plans show just how significantly the layout has been improved, with better flow, more usable space and a much more modern feel throughout.
Project Details
-
Side extension constructed to increase ground‑floor living space.
-
Rear extension added to enhance the connection to the garden and improve natural light.
-
Full attic conversion completed to provide valuable additional accommodation.
-
A comprehensive upgrade that transforms both the layout and day‑to‑day functionality of the home.
Marina Park, Belfast
Rear Extension, Internal Reconfiguration & Garden Improvements
For this project, the clients had a clear wish list focused on improving day‑to‑day practicality, creating a brighter open‑plan layout and enhancing the connection to the garden. The design brings all of these elements together, replacing the outdated conservatory, levelling floor and ceiling heights, and forming a modern open‑plan Kitchen, Living and Dining space with excellent natural daylight. Additional upgrades include a new Utility Room, improved garden access, and a full transition from oil to gas heating.
Project Details
-
New separate Utility Room created for improved household organisation.
-
Open‑plan Kitchen / Living / Dining space designed with a central island.
-
Existing conservatory removed and replaced with a modern, thermally efficient extension.
-
Rooflight installed to bring generous natural daylight into the new living space.
-
Floor, ceiling and flat‑roof levels aligned for a seamless internal finish.
-
Existing garage removed to provide easy, level access to the new garden layout.
-
Heating system upgraded from oil to gas, with oil tank removed.
-
Steps to the lower garden renewed for safer, more attractive access.
-
New garden shed added as part of the external improvements.
Cleland Park South, Bangor
Two‑Storey Rear Extension with Open‑Plan Living & New Master Suite
This two‑storey extension made a significant difference to the home. On the ground floor, the clients wanted a new open‑plan kitchen area with a sitting space at one end, creating a bright and sociable layout. On the first floor, a new fourth double Master Bedroom was added and the existing Bathroom was redesigned as a Shower Room. A project that delivered exactly what the clients were hoping for.
Project Details
-
Two‑storey rear extension.
-
Open‑plan kitchen with sitting area created on the ground floor.
-
New Master Bedroom added on the first floor.
-
Existing Bathroom reconfigured into a modern Shower Room.
-
An effective upgrade that transformed the home’s layout and functionality.
Gilnahirk Crescent, Belfast
Two Storey Side Extension, Single Storey Rear Extension and Internal Reconfiguration.
This project began with the removal of the existing single‑skin attached garage to allow for a more practical and modern layout. On the ground floor, the new extension provided a Study, downstairs WC and a Utility Room. Bi‑folding sliding doors were added to the Family Room, opening onto the new balcony and improving the connection to the garden. On the first floor, two new bedrooms were created, and one of the existing bedrooms was converted into a WC / Shower Room.
Project Details
-
Existing single‑skin attached garage removed to enable the new layout.
-
Ground‑floor extension providing a Study, downstairs WC and Utility Room.
-
Bi‑folding sliding doors added to the Family Room, opening onto a new balcony.
-
Two new first‑floor bedrooms created.
-
Existing bedroom reconfigured into a WC / Shower Room.
-
A well‑balanced upgrade improving both internal space and outdoor connection.
Trasnagh Drive, Newtownards
Single‑Storey Rear and Side Extensions & Internal Reconfiguration
It’s remarkable to see how much this home has changed since my initial meeting with the clients to explore the possibilities. With construction now complete, both Mr and Mrs M — along with their neighbours — are delighted with the finished results. The transformation is substantial, with a layout that now works beautifully for modern family living.
Project Details
-
Extensions designed to significantly improve internal space and flow.
-
Ground‑floor layout reconfigured to create brighter, more practical living areas
-
A complete transformation from the original layout, delivering exactly what the clients hoped for.
Earlswood Road, Belfast
Rear Extension with New Kitchen & Sitting / TV Room
Along the leafy Earlswood Road in Belfast, my clients asked me to explore options for extending their red‑brick home at the rear. The main objective was to renew the kitchen and create a clear connection through to a new Sitting / TV Room. The resulting design provides a brighter, more practical layout that suits modern family living while respecting the character of the original house.
Project Details
-
Rear extension designed to improve space, light and flow.
-
New kitchen layout created with direct access to a Sitting / TV Room.
-
Improved connection between the existing house and the new living space.
-
A simple, effective upgrade that enhances everyday comfort and usability.
Farnham Park, Bangor
Rear Extension to Enhance a Period Double‑Bay Home
This project in Bangor West was a pleasure to work on, helping my clients extend their beautiful double‑bay fronted period home by the sea. It was time to remove the old extension and replace it with a design that better suited their current family needs. The new rear extension provides modern, practical space while respecting the character of one of Bangor West’s finest homes — exactly what the clients were hoping for.
Project Details
-
Outdated rear extension removed and replaced with a modern, family‑focused design.
-
Improved kitchen and living connection to suit contemporary day‑to‑day use.
-
Extension designed to complement the character of the period double‑bay frontage.
-
A sensitive upgrade that enhances both functionality and long‑term enjoyment of the home.
Castlehill Drive, Belfast
Rear Extension and Internal Reconfigurations.
In this lovely home adjacent to the Stormont Estate, I was asked to design a new Family Room and a more welcoming front entrance hall. The project also included a full reworking of the ground‑floor layout, creating a brighter, more practical open‑plan space with improved access to the gardens. The result is a warm, modern home with thoughtful details throughout.
Project Details
-
New Entrance Hall created with an alcove and dedicated space for boots and coats.
-
Existing kitchen replaced with a new open‑plan Kitchen, Dining and Family Room.
-
Solid‑fuel (wood‑burning) stove installed in the sitting area.
-
Peninsula seating incorporated into the new kitchen layout.
-
Large fully glazed sliding doors added to open directly onto the garden.
-
Sheltered canopy designed around the extension for year‑round outdoor use.
-
Existing garage converted into a spacious Utility Room with additional garden and bicycle storage.
-
Downstairs WC refurbished and upgraded to include a shower.
Crofton Glen, Holywood
Two‑Storey Conservatory Replacement to Garden Room with Balcony above.
My client appointed me to remove his two‑storey red conservatory and replace it with a modern glazed Garden Room. The new space opens directly into the existing kitchen, creating a bright, open‑plan family area on the ground floor, with a new balcony above accessed from the upstairs bedrooms.
The proposed changes make a significant improvement to this lovely home, providing a spacious, contemporary living area at ground level and a balcony at first‑floor level.
Project Details
-
Removal of the existing two‑storey conservatory.
-
New modern glazed Garden Room open‑plan to the existing kitchen.
-
First‑floor balcony created above the new extension, accessed from the bedrooms.
-
Bright, spacious family room formed on the ground floor.
-
A major visual and functional upgrade to the rear of the home.
Orby Drive, Belfast
Rear Extension & Open‑Plan Living
My clients wanted to stay in their home rather than move, but their existing layout simply wasn’t meeting their needs. With superb views over their large gardens towards Greenville Park, it was clear why — the best outlook was only available from a small patio. The solution was to create a new large open‑plan Kitchen / Dining / Family space, widen the existing window opening and install large sliding doors to fully connect the home with the gardens. A new downstairs WC and a Study were also added as part of the redesign. The difference this extension has made is remarkable — a wonderful, improved home that now makes the most of its setting.
Project Details
-
Large open‑plan Kitchen / Dining / Family Room created to maximise garden views.
-
Existing window opening widened with new large sliding doors installed.
-
Strong visual and physical connection formed between the home and gardens.
-
New downstairs WC added for improved convenience.
-
New Study created as part of the ground‑floor reconfiguration.
-
A transformative extension that enhances both daily living and long‑term enjoyment of the home.
Rosetta Avenue, Belfast
Comprehensive Extensions & Full Layout Reconfiguration
There were so many changes in this home — the Existing and Proposed CAD drawings show just how extensive the transformation was. Multiple areas were reworked, extended and improved to create a far more practical, modern layout that suits the clients’ day‑to‑day needs. A project with many moving parts, but one that came together beautifully.
Project Details
-
Extensive internal reconfiguration across multiple rooms.
-
Ground‑floor and first‑floor layouts redesigned for improved flow and usability.
-
Structural alterations coordinated to support the new arrangement.
-
A complete transformation clearly illustrated in the Existing and Proposed Plans.
Sandeel Lane, Orlock
First‑Floor Extension with Open‑Plan Living & Sea‑Facing Balcony
This beautiful seaside cottage, clad in charred timber and overlooking the Irish Sea, is truly unique. My client asked me to design a new first floor to provide open‑plan living accommodation along with a Master Bedroom and Ensuite. The elevated views will be superb — looking out towards Scotland — and on a warm day the new balcony will be a joy to use.
The new modern, carefully detailed extensions will make a significant improvement to this lovely home, creating bright, spacious living areas above and below. I’m delighted that Planning Permission has now been granted.
Project Details
-
New first‑floor extension providing open‑plan living accommodation.
-
Master Bedroom with Ensuite created on the upper level.
-
Sea‑facing balcony designed to maximise views towards Scotland.
-
Contemporary design that enhances both the character and functionality of the cottage.
-
A major upgrade in one of the most stunning coastal locations.
Whitechurch Road, Ballywalter
Two‑Storey Coastal Extension with Modern Beach‑House Design
This little holiday cottage in County Down has been completely transformed. My clients wanted to retain the charm of the original property while creating a modern, bright, two‑storey extension to the rear facing the sea. Their wish list focused on maximising glazing, improving internal layout, and achieving a contemporary beach‑house feel — and the new design delivers exactly that.
The extension provides a spacious open‑plan living, dining and kitchen area on the ground floor with extensive glazing to capture the coastal views. Upstairs, a new living space or bedroom with a wood‑burning stove opens onto a glazed balcony, creating the perfect spot to enjoy the sea air. With three bedrooms, reconfigured bathroom layout and a striking modern aesthetic, this cottage now offers everything my clients hoped for.
Project Details
-
Two‑storey rear extension on the sea‑facing side of the cottage.
-
Modern beach‑house style with extensive glazing throughout.
-
Glazed first‑floor doors and balcony for outdoor sitting space and elevated views.
-
Ground‑floor open‑plan living/dining/kitchen area with maximum glazing.
-
Existing bathroom relocated to a more practical position.
-
Three‑bedroom layout achieved (two downstairs, one upstairs).
-
First‑floor living area/bedroom with wood‑burning stove.
-
A bright, modern coastal retreat with superb views and a completely renewed character.
Largymore Drive, Lisburn
Home Improvements with New Sunroom & Internal Upgrades
Mrs H asked me to help her with a number of improvements to her home, including the addition of a new sunroom. The project involved several changes throughout the property, all designed to make the home brighter, more practical and more enjoyable day‑to‑day. Follow the photos to see the transformation — I hope you like the results as much as we do.
Project Details
-
New sunroom added to create a bright, relaxing living space.
-
Multiple internal improvements carried out to meet the client’s wish list.
-
Layout enhanced to improve comfort, light and usability.
-
A thoughtful upgrade that makes a noticeable difference to the home.
%2007_edited_edited_edited_pn.png)






















































































































































































