
With 40+ years’ experience, I help homeowners across North Down, Greater Belfast and throughout Northern Ireland plan and design high‑quality home alterations, providing clear, practical design from first ideas through to Planning and Building Control approval.
A Practical Way to Improve How Your Home Works
Internal alterations can transform how your home functions day‑to‑day — improving light, flow and the way spaces connect. Most homeowners use internal alterations to open up living areas, create better kitchen layouts or improve circulation, but the design can be tailored to whatever your home needs.
I help you explore what’s possible and design changes that feel natural, practical and well‑considered.
From first ideas through Building Control approval, every stage is handled with clarity and a focus on how you want to live. See similar projects below or get in touch to discuss your own ideas.
Project Starter Guide (PDF)
A simple two‑page checklist to help you prepare the right information before we speak.
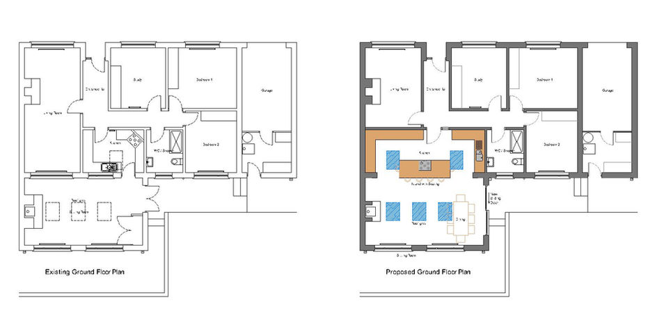
Victoria Mews, Donaghadee
Open‑Plan Ground Floor — A Simple Change with a Big Impact
An extension isn’t always required to improve a home, and this project is a perfect example. My clients wanted an open‑plan family space, and by removing two internal walls we were able to transform the entire ground floor without altering the footprint of the house.
The new layout brings the kitchen, dining and sitting areas together into one bright, flowing space. Large full‑glazed sliding doors now open directly onto the garden, creating a strong connection between inside and out.
Project Details
-
No extension required — transformation achieved within the existing footprint.
-
Two internal walls removed to create an open‑plan Kitchen, Dining and Sitting Room.
-
Large full‑glazed sliding doors installed for improved light and garden access.
-
A simple, cost‑effective redesign that delivers a modern family living space.
Kilmakee Park, Gilnahirk
Open‑Plan Ground Floor with New Kitchen & Garden Access
This traditional semi‑detached home in Belfast had just been purchased by my client. It was a lovely property in a great area, but the downstairs layout felt enclosed and didn’t suit her needs. She wanted an open‑plan ground floor with a larger kitchen and better connection to the garden. By removing two internal walls and redesigning the space, we created a bright, modern open‑plan layout that works beautifully. The new double‑glazed sliding doors now provide easy access to the garden and bring in plenty of natural light.
Project Details
-
Traditional Belfast semi‑detached home modernised and opened up.
-
Two internal walls removed to create a spacious open‑plan layout.
-
New larger kitchen designed as part of the reconfiguration.
-
Double‑glazed sliding doors installed for improved light and garden access.
-
A simple but highly effective transformation that enhances everyday living.
Brownlow Street, Comber
Full Home Refurbishment — Open‑Plan Living, New Staircase & Sunroom Upgrade
This project involved a complete refurbishment of the home, with a focus on modernising the ground floor and improving circulation throughout. The main transformation centred on creating an open‑plan living space and replacing the narrow, awkward staircase. The new single‑flight stair now provides a safer, more generous landing area on the first floor, greatly improving access to the bedrooms.
The existing sunroom was also fully refurbished, with new glazing, a new pitched roof and full ceiling height, turning it into a bright, usable space all year round. Every room was redecorated, and a Velux Sun Tunnel was added to bring natural light into the new WC/Shower room. The before‑and‑after photos show just how much this modernisation has improved the home.
Project Details
-
Full refurbishment and modernisation of the property.
-
Ground floor reconfigured to create open‑plan living accommodation.
-
Narrow staircase replaced with a new single‑flight design for improved safety and circulation.
-
First‑floor landing redesigned for better access to bedrooms.
-
Sunroom upgraded with new glazing, pitched roof and full ceiling height.
-
Velux Sun Tunnel added to brighten the new WC/Shower room.
-
All rooms redecorated as part of the full‑home transformation.
-
A dramatic improvement clearly shown in the before‑and‑after photos.
The Grand Opera House, Belfast
Detailed Refurbishment Drawings for a Historic Theatre
In 2021 I was appointed to prepare detailed drawings for the refurbishment of the Grand Opera House in Belfast. The theatre was closed during the Covid‑19 pandemic while extensive restoration and modernisation works were carried out to its much‑loved interior. I was delighted to be involved and spent several weeks producing over 80 detailed drawings to support the project team.
Following the £12.2 million revamp, the Grand Opera House was officially reopened by Prince Charles. He was welcomed on stage by legendary pantomime dame May McFettridge before unveiling a plaque to mark the occasion — a memorable moment for a landmark building.
I’m genuinely proud to have been trusted with such a significant piece of work, particularly the detailed drawings for the four main bars — the Stalls Bar, Shakespeare Bar, Upper Circle Bar and VIP Bar — along with the confectionery counters, reception box office, stalls, toilets, seating, auditorium and foyer. It was a privilege to contribute to the restoration of one of Northern Ireland’s most iconic theatres.
Project Details
-
Preparation of over 80 detailed drawings for the refurbishment works.
-
Appointed during the Covid‑19 closure to support the restoration programme.
-
Detailed design work for:
-
Stalls Bar
-
Shakespeare Bar
-
Upper Circle Bar
-
VIP Bar
-
-
Additional drawings for confectionery counters, box office, stalls, toilets, seating, auditorium and foyer.
-
Part of the £12.2 million refurbishment officially reopened by Prince Charles.
-
A prestigious and meaningful project involving one of Belfast’s most historic cultural venues.
Loft on the Square, Kings Road
Coffee Shop Refurbishment — Bright, Modern Interior with New Glazing & Stove
This project involved a complete overhaul of an existing coffee shop to create a brighter, more welcoming space. New windows were introduced to flood the interior with natural daylight, transforming the atmosphere and improving the customer experience.
A new wood‑burning stove was added as a focal point, bringing warmth and character to the space.
The refurbishment also included new flooring, full redecoration and a refreshed layout — all contributing to a clean, modern look. And best of all, the magnificent food now has a setting to match.
Project Details
-
Full refurbishment of an existing coffee shop.
-
New windows added to maximise natural daylight.
-
Wood‑burning stove installed as a central feature.
-
New flooring and complete redecoration throughout.
-
Bright, modern interior designed to enhance the customer experience.
Contact Glenn
If you’d like clear advice, ideas or a quotation for your project, I’d be happy to help
If you’d like to see more examples of my work, you can view a selection of recent projects here.
Not sure about the difference between an Architect and a Chartered Architectural Technologist?
Internal Alterations FAQs
Here are answers to common questions homeowners ask about internal alterations
What counts as an internal alteration?
Internal alterations include changes such as removing walls, opening up rooms, improving light and flow, or reconfiguring layouts to make your home work better day to day.
Do internal alterations need planning permission?
Most internal alterations do not need planning permission. However, if the exteranal appearance is changing by adding new windows or external doors planning permission may be required. I’ll confirm this at the start so you know exactly what’s needed.
Will I need Building Control approval?
Yes. Building Control approval is required for many internal alterations, especially when structural changes are involved. I prepare all drawings and handle the application on your behalf.
Can you tell me if a wall is load‑bearing?
Yes. I assess the existing structure, identify load‑bearing walls and advise on safe options for opening up spaces.
How long does the design and approval process take?
Most internal alteration projects take around 4 weeks for drawings, plus 6–8 weeks for Building Control approval. I’ll give you a clear timeline based on your home and the scope of work.
Can you help me explore different layout options?
Absolutely. I can prepare layout ideas to help you compare options and choose the one that best improves space, light and flow.
%2007_edited_edited_edited_pn.png)

_JPG.jpg)
.jpg)














































